 |
 |
 |
| Autore |
Messaggio |
|
brugola
Iscritto il: 28/12/2010, 11:52 Messaggi: 18
|
Sono molto orgogliosa di mostrare a tutti gli utenti del forum il mio nuovo palchetto di mungitura autocostruito a due posti. UN VERO GIOIELLINO !!!!
Allegati:
Palchetto 008-rid.jpg [ 180.56 KiB | Osservato 3451 volte ]
Palchetto 004.jpg [ 213.63 KiB | Osservato 3451 volte ]
_________________ Capra é bello, bianca é meglio
|
| 06/03/2013, 14:34 |
|
 |
|
|
 |
|
klaus8
Iscritto il: 10/09/2012, 16:59 Messaggi: 476 Località: sicilia
|
complimenti.  bellino
|
| 06/03/2013, 22:26 |
|
 |
|
mirkobs78
Iscritto il: 07/11/2011, 13:52 Messaggi: 404 Località: Visano (Bs)
|
Che bello!!! Complimenti!!!
_________________ Non è la cecità che toglie la luce, ma l’assenza di luce che rende ciechi. Non è la sordità che toglie il suono, ma l’assenza di vibrazioni e di vita che rende sordi e muti
|
| 06/03/2013, 22:53 |
|
 |
|
luigi82
Iscritto il: 19/01/2012, 3:06 Messaggi: 445 Località: Provincia di Roma
|
Brava Brugola!!! Complimenti 
_________________ Arrendersi è il più grande vantaggio che si possa dare al nemico (Confucio)
|
| 07/03/2013, 2:33 |
|
 |
|
Eugenio91
Iscritto il: 11/12/2010, 0:13 Messaggi: 889 Località: Forlì (Loc. Vecchiazzano)
|
Che meraviglia 
|
| 07/03/2013, 8:29 |
|
 |
|
gliglio
Iscritto il: 28/12/2011, 12:46 Messaggi: 379 Località: Ragusa
Formazione: Diploma
|
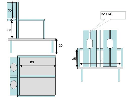
complimenti brugola bello veramente, puoi darmi le misure.
|
| 07/03/2013, 10:36 |
|
 |
|
brugola
Iscritto il: 28/12/2010, 11:52 Messaggi: 18
|
Eccole, il primo disegno é quello iniziale, il secondo é un dettaglio successivo.
Allegati:
Misure-palchetto1.jpg [ 19.63 KiB | Osservato 3371 volte ]
Misure-palchetto2.jpg [ 41.88 KiB | Osservato 3371 volte ]
_________________ Capra é bello, bianca é meglio
|
| 11/03/2013, 21:15 |
|
 |
|
gliglio
Iscritto il: 28/12/2011, 12:46 Messaggi: 379 Località: Ragusa
Formazione: Diploma
|
grazie mille per il disegno e le misure.
|
| 14/03/2013, 10:57 |
|
 |
|
vitto18
Iscritto il: 28/12/2010, 21:36 Messaggi: 1685 Località: Sicilia
|
Complimentoniii!!! Ma che capre allevi? 
|
| 23/03/2013, 10:52 |
|
 |
|
Tosco
Iscritto il: 07/06/2010, 14:55 Messaggi: 5321 Località: Maremma 'mpestata
Formazione: Perito Agrario
|
Complimenti brugola!!! Le mie capre credo che lo distruggerebbero in un secondo: sono troppo indisciplinate per una cosa del genere Ciao Tosco
|
| 28/03/2013, 0:09 |
|
|
Chi c’è in linea |
Visitano il forum: Nessuno e 1 ospite |
|
Non puoi aprire nuovi argomenti Non puoi rispondere negli argomenti Non puoi modificare i tuoi messaggi Non puoi cancellare i tuoi messaggi Non puoi inviare allegati
|
|
 |
|